Rif: 578/O
VELLETRI
ROMA
Scopri questo esclusivo centro estetico ed estetica avanzata a due passi dalla Piazza Cairoli. Il locale, finemente ristrutturato, offre un doppio ingresso uno dei quali con rampa di accesso , una terrazza a livello ad uso esclusivo di 120 mq, perfetta per eventi o momenti di relax. L'attività è consolidata e riconosciuta ad alto livello, garantendo un investimento sicuro e redditizio.
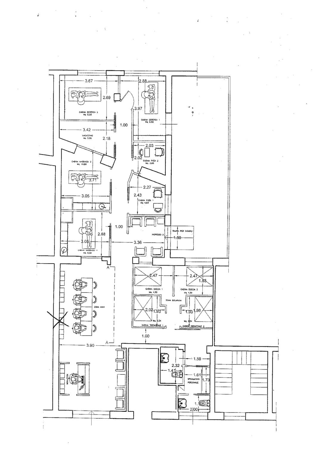
All'interno troverai un salone reception accogliente con divanetti per i clienti, e offre i seguenti spazi: 4 postazioni nails, 4 lampade solarium di cui due tri facciali , 2 cabine estetiche, 2 cabine per massaggi comunicanti tra di loro con la doccia interna, 2 cabine pedicure. Tutte le cabine sono ampie e finemente arredate con stigliatura e mobilio su misura realizzati da artigiani, l'area spogliatoio, magazzino, un ampio bagno, disponibile per i clienti con tutte le accortezze per i diversamente abili, bagno per il personale , offrono tutto lo spazio necessario per gestire al meglio l'attività. La vetrina su strada commerciale garantisce massima visibilità. Il canone mensile delle mura è di 1.300 euro. Riferimento annuncio 578/O Per ulteriori informazioni, visita il nostro sito web o contattaci presso il nostro ufficio in Via Menotti Garibaldi n. 14, Velletri (Rm). Siamo aperti dal lunedì al venerdì dalle 9 alle 13 e dalle 15.30 alle 19.30, e il sabato dalle 9 alle 13.
All'interno troverai un salone reception accogliente con divanetti per i clienti, e offre i seguenti spazi: 4 postazioni nails, 4 lampade solarium di cui due tri facciali , 2 cabine estetiche, 2 cabine per massaggi comunicanti tra di loro con la doccia interna, 2 cabine pedicure. Tutte le cabine sono ampie e finemente arredate con stigliatura e mobilio su misura realizzati da artigiani, l'area spogliatoio, magazzino, un ampio bagno, disponibile per i clienti con tutte le accortezze per i diversamente abili, bagno per il personale , offrono tutto lo spazio necessario per gestire al meglio l'attività. La vetrina su strada commerciale garantisce massima visibilità. Il canone mensile delle mura è di 1.300 euro. Riferimento annuncio 578/O Per ulteriori informazioni, visita il nostro sito web o contattaci presso il nostro ufficio in Via Menotti Garibaldi n. 14, Velletri (Rm). Siamo aperti dal lunedì al venerdì dalle 9 alle 13 e dalle 15.30 alle 19.30, e il sabato dalle 9 alle 13.
Consistenze
| Descrizione | Superficie | Sup. comm. |
|---|---|---|
| Principali | ||
| Negozio - piano rialzato | 165 Mq | 165 Mqc |
| Totale | 165 Mqc | |

