Rif: 117/D
VELLETRI
ROMA
Ottimo come uso investimento! L'immobile è attualmente locato con una rendita mensile di Eu. 400, rappresentando un'interessante opportunità per chi desidera un acquisto a reddito sicuro.
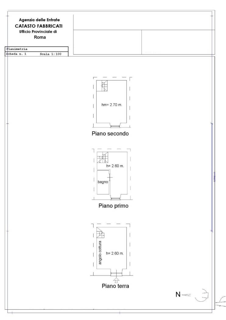
Situato nel cuore di Velletri, questo affascinante palazzetto cielo-terra, realizzato nel 1900 e completamente ristrutturato nel 2017, offre una superficie commerciale di 48 m² distribuita su tre livelli, con spazi funzionali e ben organizzati.Al piano terra una cucina accogliente invita a piacevoli momenti di convivialità, mentre una scala a chiocciola conduce al primo piano, dove si trovano una cameretta e un bagno con doccia. Proseguendo al secondo piano, la camera matrimoniale rappresenta un rifugio intimo e rilassante. I pavimenti in monocottura e i rivestimenti in marmo del bagno donano agli ambienti un'eleganza sobria e raffinata.Le finiture esterne in PVC con persiane garantiscono isolamento e sicurezza; tetto e solaio sono stati completamente ristrutturati. Sebbene l'impianto di riscaldamento sia già predisposto, è necessario installare la caldaia. L'immobile dispone inoltre di condizionatori caldo/freddo che assicurano comfort in ogni stagione.Prezzo di vendita richiesto 65.000.
Codice di riferimento: 117/D.
Per ulteriori informazioni o per fissare un appuntamento, contattaci al numero 06/96142506.Per scoprire tutte le nostre proposte, visita il sito ufficiale o vieni a trovarci in Via Menotti Garibaldi n.14 – Velletri (RM).Siamo aperti dal lunedì al venerdì 9:00-13:00 / 15:30-19:30 e il sabato 9:00-13:00.Immobiliare Fagnani, da quasi 30 anni al tuo fianco nel settore immobiliare, garanzia di affidabilità e professionalità.
Situato nel cuore di Velletri, questo affascinante palazzetto cielo-terra, realizzato nel 1900 e completamente ristrutturato nel 2017, offre una superficie commerciale di 48 m² distribuita su tre livelli, con spazi funzionali e ben organizzati.Al piano terra una cucina accogliente invita a piacevoli momenti di convivialità, mentre una scala a chiocciola conduce al primo piano, dove si trovano una cameretta e un bagno con doccia. Proseguendo al secondo piano, la camera matrimoniale rappresenta un rifugio intimo e rilassante. I pavimenti in monocottura e i rivestimenti in marmo del bagno donano agli ambienti un'eleganza sobria e raffinata.Le finiture esterne in PVC con persiane garantiscono isolamento e sicurezza; tetto e solaio sono stati completamente ristrutturati. Sebbene l'impianto di riscaldamento sia già predisposto, è necessario installare la caldaia. L'immobile dispone inoltre di condizionatori caldo/freddo che assicurano comfort in ogni stagione.Prezzo di vendita richiesto 65.000.
Codice di riferimento: 117/D.
Per ulteriori informazioni o per fissare un appuntamento, contattaci al numero 06/96142506.Per scoprire tutte le nostre proposte, visita il sito ufficiale o vieni a trovarci in Via Menotti Garibaldi n.14 – Velletri (RM).Siamo aperti dal lunedì al venerdì 9:00-13:00 / 15:30-19:30 e il sabato 9:00-13:00.Immobiliare Fagnani, da quasi 30 anni al tuo fianco nel settore immobiliare, garanzia di affidabilità e professionalità.
Consistenze
| Descrizione | Superficie | Sup. comm. |
|---|---|---|
| Principali | ||
| Immobile - piano terra | 48 Mq | 48 Mqc |
| Totale | 48 Mqc | |

